Quadrilocale in vendita

Rose, Contrada petraro - Petraro
€ 115.000
Prezzo aggiornato
4 locali 4 locali
120 Mq 120 Mq
2 bagni 2 bagni

Quadrilocale in vendita

Rose, Contrada petraro - Petraro

Descrizione annuncio

BIVIO DI ROSE

ATTICO CON DUE TERRAZZI – QUARTO PIANO CON ASCENSORE

In contesto tranquillo e ben servito proponiamo in vendita elegante attico al quarto piano con ascensore, caratterizzato da ambienti luminosi e spazi ottimamente distribuiti.

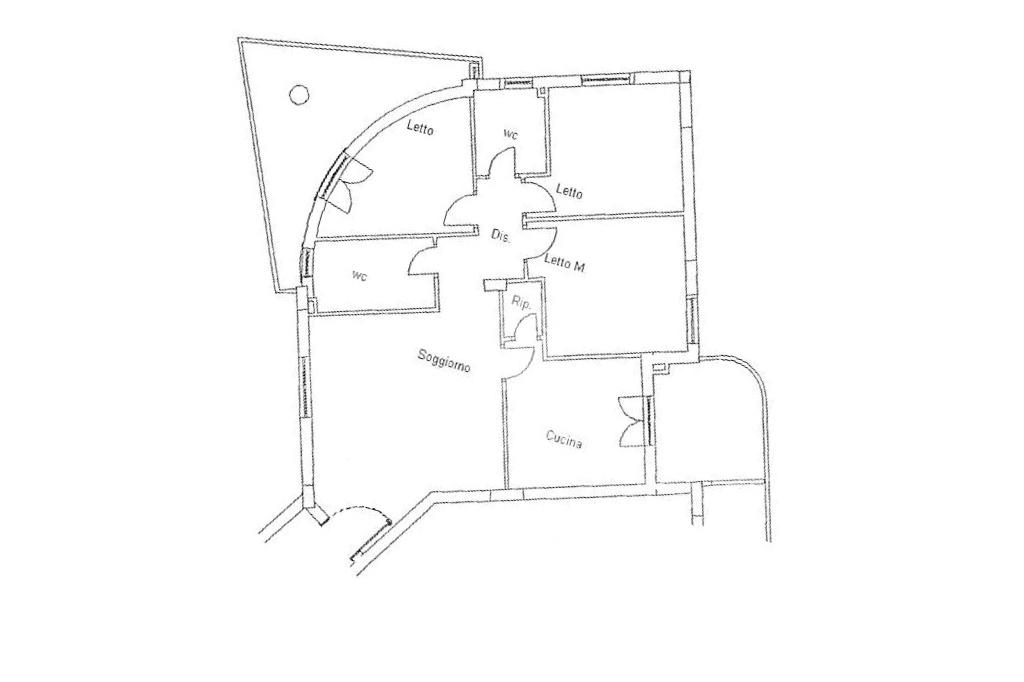
L’immobile si compone di:
• Soggiorno ampio e accogliente, perfetto per la zona relax;
• Cucina separata e abitabile, con accesso diretto al primo terrazzo;
• Tre comode camere da letto, di cui una con uscita sul secondo terrazzo;
• Due bagni finestrati, uno dotato di vasca e l’altro di doccia, entrambi completi e funzionali.

Completano la proprietà:
• Locale deposito al piano seminterrato incluso nel prezzo;
• Arredi dei bagni, climatizzatore e zanzariere già installate.

Un attico ideale per chi cerca comfort, privacy e spazi esterni vivibili.

Contattaci per maggiori informazioni o per prenotare una visita!

Mostra tutto

Nelle vicinanze

Trasporto pubblico Trasporto pubblico
Consorzio Autolinee
Consorzio Autolinee
2,6 Km
Scuole Scuole
Scuola
2,2 Km
Bar Bar
Bar Trieste
2,6 Km
Ristoranti Ristoranti
Da Mario
2,3 Km
Ristorante Pizzeria La Ciambotta
2,7 Km
Mostra tutto

Caratteristiche

Rif.:
61153028
Piano:
4 di 4 con ascensore (ultimo Piano)
Posti auto:
1
Terrazzi:
2
Camere da letto:
3
Arredamento:
Assente
Mostra tutto
Prezzo Prezzo
€ 115.000
Rata mutuo Rata mutuo
€ 546 / mese
Spese annue Spese annue
€ 720
Proponi il tuo prezzoProponi il tuo prezzo
Immobile valutato con T·Valuta

Classe Energetica

C
C
C
C
C
C
C
C
C
EP globale non rinnovabile:
84.81 kW h/m² anno
EP globale rinnovabile:
3.00 kW h/m² anno
EP invernale del fabbricato:
EP estiva del fabbricato:
Anno di costruzione:
2010
Riscaldamento:
Autonomo
Tipo impianto:
A radiatori
Tipo alimentazione:
Metano

Prezzo ridotto di €1 (12%%)

Ti interessa visionare l'immobile?

Fissa un appuntamento  Fissa un appuntamento

Richiedi informazioni

Clicca su Leggi per aprire l'informativa
* Questi campi sono obbligatori

Calcola il tuo mutuo

Semplice e senza impegno
Anticipo

( % )
Mutuo

( % )

pochi semplici passi

inserisci i tuoi dati
Questionario completato
Grazie per aver richiesto un appuntamento senza impegno con un nostro Consulente del Credito e Assicurativo.

Hai inserito correttamente tutti i dati necessari e a breve riceverai una e-mail con un link da convalidare per inviare i tuoi dati.
Affiliato
Immobiliare Montalto Srl
Via Trieste, 276 87046 Montalto Uffugo (CS)

Il nostro staff


  • Antonio Passarelli
    Affiliato

  • Matteo Cufone
    Collaboratore

  • Emilio Macretti
    Responsabile

  • Manuel Pio Mandolito
    Collaboratore

  • Angela Procopio
    Coordinatrice
Via Trieste, 276 87046 Montalto Uffugo (CS)
Zona: Montalto
Mostra su mappa
Orari: Dal lunedì al venerdì 8.30 - 13.00/15.30 - 20.00; Sabato 8.30 -13.00 /15.30 - 19.00
Affiliato
Immobiliare Montalto Srl
Via Trieste, 276 87046 Montalto Uffugo (CS)

2026 Tecnocasa Franchising S.p.A. - P. IVA 08365160152 - Via Monte Bianco 60/A 20089 Rozzano (MI). Ogni agenzia ha un proprio titolare ed è autonoma. Privacy policy | Policy utilizzo | Cookie policy