Quadrilocale in vendita

Rose, Via Sp247
€ 119.000
4 locali 4 locali
127 Mq 127 Mq
2 bagni 2 bagni

Quadrilocale in vendita

Rose, Via Sp247

Descrizione annuncio

BIVIO DI ROSE

In vendita: Elegante appartamento al primo piano con ascensore

In posizione tranquilla e ben servita, proponiamo un appartamento al primo piano, raggiungibile comodamente tramite ascensore, ideale per chi cerca comfort e funzionalità senza rinunciare a spazi ben distribuiti.

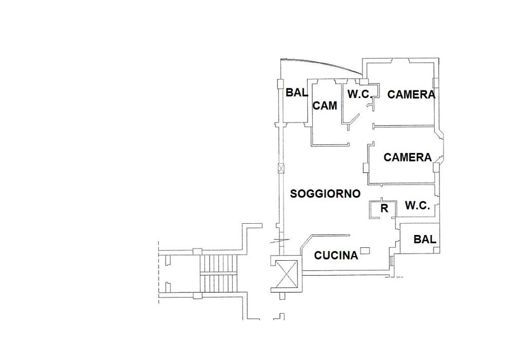
L’ingresso si apre su un ampio soggiorno con cucina open space, studiata per essere moderna e conviviale, ma al tempo stesso riservata grazie a una disposizione intelligente degli ambienti. Completa la zona giorno un pratico ripostiglio e due terrazzi vivibili, perfetti per cene all’aperto o momenti di relax.

La zona notte comprende tre camere da letto, ideali per famiglie o per chi desidera una stanza studio/ospiti, e due bagni finemente rifiniti.

A completare la proprietà, compresa nel prezzo, una comoda cantinola, sempre utile per riporre ciò che non serve tutti i giorni.

Un appartamento pronto da vivere, perfetto per chi desidera spazi funzionali, comfort moderno e un contesto piacevole.

Contattaci per maggiori informazioni o per fissare una visita!

Inoltre, grazie alla collaborazione con la rete di mediazione creditizia Kiron, offriamo un'assistenza completa in fase di acquisto, post vendita e nell'ottenimento del mutuo.

Seguiteci sulla nostra Fanpage per rimanere sempre aggiornati sulle nuove proposte immobiliari e sulle ultime novità in tema di casa!

Mostra tutto

Nelle vicinanze

Scuole Scuole
Scuola
2,7 Km
Ristoranti Ristoranti
Da Mario
2,4 Km
Mostra tutto

Caratteristiche

Rif.:
61141761
Piano:
1 di 4 con ascensore (Piano basso)
Posti auto:
1
Terrazzi:
2
Camere da letto:
3
Arredamento:
Assente
Mostra tutto
Prezzo Prezzo
€ 119.000
Rata mutuo Rata mutuo
€ 565 / mese
Spese annue Spese annue
€ 336
Proponi il tuo prezzoProponi il tuo prezzo
Immobile valutato con T·Valuta

Classe Energetica

F
F
F
F
F
F
F
F
F
EP globale non rinnovabile:
240.95 kW h/m² anno
EP globale rinnovabile:
3.31 kW h/m² anno
EP invernale del fabbricato:
EP estiva del fabbricato:
Anno di costruzione:
2007
Riscaldamento:
Autonomo
Tipo impianto:
A radiatori
Tipo alimentazione:
Metano

Ti interessa visionare l'immobile?

Fissa un appuntamento  Fissa un appuntamento

Richiedi informazioni

Clicca su Leggi per aprire l'informativa
* Questi campi sono obbligatori

Calcola il tuo mutuo

Semplice e senza impegno
Anticipo

( % )
Mutuo

( % )

pochi semplici passi

inserisci i tuoi dati
Questionario completato
Grazie per aver richiesto un appuntamento senza impegno con un nostro Consulente del Credito e Assicurativo.

Hai inserito correttamente tutti i dati necessari e a breve riceverai una e-mail con un link da convalidare per inviare i tuoi dati.
Affiliato
Immobiliare Montalto Srl
Via Trieste, 276 87046 Montalto Uffugo (CS)

Il nostro staff


  • Antonio Passarelli
    Affiliato

  • Matteo Cufone
    Collaboratore

  • Emilio Macretti
    Responsabile

  • Manuel Pio Mandolito
    Collaboratore

  • Angela Procopio
    Coordinatrice
Via Trieste, 276 87046 Montalto Uffugo (CS)
Zona: Montalto
Mostra su mappa
Orari: Dal lunedì al venerdì 8.30 - 13.00/15.30 - 20.00; Sabato 8.30 -13.00 /15.30 - 19.00
Affiliato
Immobiliare Montalto Srl
Via Trieste, 276 87046 Montalto Uffugo (CS)

2026 Tecnocasa Franchising S.p.A. - P. IVA 08365160152 - Via Monte Bianco 60/A 20089 Rozzano (MI). Ogni agenzia ha un proprio titolare ed è autonoma. Privacy policy | Policy utilizzo | Cookie policy