Trilocale in vendita

Montalto Uffugo, Via Insidia - Taverna
€ 135.000
3 locali 3 locali
117 Mq 117 Mq
2 bagni 2 bagni

Trilocale in vendita

Montalto Uffugo, Via Insidia - Taverna

Descrizione annuncio

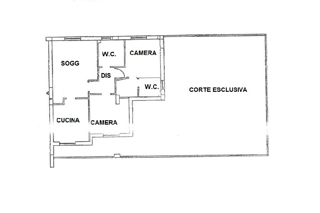
TAVERNA

OCCASIONE UNICA – CASA COMPLETAMENTE RISTRUTTURATA!

In vendita splendida abitazione finemente rinnovata, pronta da vivere senza alcun intervento!

All’ingresso ti accoglie un luminoso soggiorno con cucina abitabile, perfetto per chi ama gli spazi conviviali e moderni.

La zona notte è composta da:
• Camera singola ampia e comodissima, ideale come stanza per ospiti, studio o cameretta;
• Camera matrimoniale con bagno privato en suite, con possibilità di realizzare una cabina armadio dedicata.

A completare il comfort della casa, un bagno padronale elegante e funzionale.

Gli spazi esterni non mancano:
• Terrazzo riservato, ideale per colazioni all’aperto o momenti di relax;
• Corte privata esclusiva, perfetta per chi desidera uno spazio esterno indipendente e personalizzabile.

Rifiniture dell'immobile: pavimentazione in gress porcellenato effetto legno, porte interne tamburate in legno, infissi in pvc a taglio termico, tapparelle in pvc avvolgibili, pavimentazione esterna da definire. L'immobile si vende compreso di box auto.

Una soluzione moderna, curata nei dettagli e pronta per essere abitata.
Contattaci subito per scoprire di più o fissare una visita!

Inoltre, grazie alla collaborazione con la rete di mediazione creditizia Kiron, offriamo un'assistenza completa in fase di acquisto, post vendita e nell'ottenimento del mutuo.

Seguiteci sulla nostra Fanpage per rimanere sempre aggiornati sulle nuove proposte immobiliari e sulle ultime novità in tema di casa!

Mostra tutto

Nelle vicinanze

Ricariche auto elettriche Ricariche auto elettriche
EnelX EVA+ Conad Taverna di Montalto
610 m
Negozi Negozi
Malizia
2,0 Km
Pan C
2,0 Km
Mostra tutto

Caratteristiche

Rif.:
61120980
Piano:
Terra di 4 con ascensore
Totale piani:
4
Box:
1
Posti auto:
2
Balconi:
1
Mostra tutto
Prezzo Prezzo
€ 135.000
Rata mutuo Rata mutuo
€ 636 / mese
Spese annue Spese annue
€ 600
Proponi il tuo prezzoProponi il tuo prezzo
Immobile valutato con T·Valuta

Classe Energetica

Questo immobile è esente da classe energetica
Anno di costruzione:
2005
Riscaldamento:
Autonomo
Tipo impianto:
A radiatori
Tipo alimentazione:
Metano

Ti interessa visionare l'immobile?

Fissa un appuntamento  Fissa un appuntamento

Richiedi informazioni

Clicca su Leggi per aprire l'informativa
* Questi campi sono obbligatori

Calcola il tuo mutuo

Semplice e senza impegno
Anticipo

( % )
Mutuo

( % )

pochi semplici passi

inserisci i tuoi dati
Questionario completato
Grazie per aver richiesto un appuntamento senza impegno con un nostro Consulente del Credito e Assicurativo.

Hai inserito correttamente tutti i dati necessari e a breve riceverai una e-mail con un link da convalidare per inviare i tuoi dati.
Affiliato
Immobiliare Montalto Srl
Via Trieste, 276 87046 Montalto Uffugo (CS)

Il nostro staff


  • Antonio Passarelli
    Affiliato

  • Matteo Cufone
    Collaboratore

  • Emilio Macretti
    Responsabile

  • Manuel Pio Mandolito
    Collaboratore

  • Angela Procopio
    Coordinatrice
Via Trieste, 276 87046 Montalto Uffugo (CS)
Zona: Montalto
Mostra su mappa
Orari: Dal lunedì al venerdì 8.30 - 13.00/15.30 - 20.00; Sabato 8.30 -13.00 /15.30 - 19.00
Affiliato
Immobiliare Montalto Srl
Via Trieste, 276 87046 Montalto Uffugo (CS)

2026 Tecnocasa Franchising S.p.A. - P. IVA 08365160152 - Via Monte Bianco 60/A 20089 Rozzano (MI). Ogni agenzia ha un proprio titolare ed è autonoma. Privacy policy | Policy utilizzo | Cookie policy